圆明园自清康熙年间始建后,扩建、添建、改建不断,景点、设施逐渐完善,成为帝王偏爱的豫游理政之所,以至乾隆帝赞其“规模之宏敞,丘壑之幽深,风土草木之清佳,高楼邃室之具备,亦可称观止”。[2]所谓“高楼邃室之具备”在很大程度上依赖格局完善、形式和谐、装饰丰富的内檐装修设计。九州清晏景区作为圆明园中最重要的皇帝燕居之所位于圆明园前湖之北,而九州清晏更在景区北端,是其后殿,也是欣赏后湖景色的佳处。该殿在历史上经历了几个时期的形制变化[3]:雍正间始建至道光十年,九州清晏殿七间带三间后抱厦,是为早期,其间内檐装修或有改建但形制大体延续;道光十六年殿毁于火,遂于道光十七年七月重建九州清晏殿五间,无前后抱厦,后又于咸丰五年,添建后抱厦,是为其中期形制;圆明园罹劫后同治重修间,有两卷九州清晏的设计,当定为晚期。在各处样房遗图中,各时期九州清晏内檐装修大多都有反映,唯同治重修图样中仅有间架格局,并无装修形式标注。诸多时期中,以早期情况能更好地反映圆明园始建的设计意图,而由于资料所限研究尚未透彻。笔者兹就清代样式房所遗图文档案及其他相关资料缕其详,刍议九州清晏殿早期内檐装修形制问题。
一 九州清晏殿早期建筑形式
御园燕寝之所九州清晏景区主要由中、东、西三路建筑构成,中路从南至北的主要殿宇为圆明园殿、奉三无私殿、九州清晏殿,其中九州清晏殿“为宵旰寝兴之所”,“累朝以来,皆循旧制”。[4]对于九州清晏殿的类型归属问题,清华大学贾珺先生在其博士论文《清代离宫御苑朝寝空间研究》中曾有过详细的论述,将其归入“寝宫中的大殿”一类,以“区别于姘妃的普通寝宫居殿”。[5]具体来讲,九州清晏殿是供皇帝起居的主要大殿,应当同时具有内延礼仪、帝后寝居和日常休息等公共和私密的建筑功能。
那么,早期的九州清晏殿的建筑外部总体形式是怎样体现这样的审美和功能要求的呢?
首先,九州清晏殿的平面形式如《日下旧闻考》中记载,“九州清晏殿七楹”。圆明园四十景图中所绘九州清晏殿面阔七间,证实了书中的描绘,其后并有抱厦形象。中国国家图书馆藏样式雷档案中有一则做法册,内容涉及早期九州清晏殿建筑细节:“九州清晏殿一座七间,后接抱厦三间”。[6]至于道光十六年失火后的九州清晏殿形式,则简化成五间,咸丰间添加后抱厦,同治时亦规划成两卷殿,几个时期的形式均有与早期不同。尽管如此,除了道光年间火后仓促复建者以外,九州清晏殿北均建有抱厦或后卷殿,从此可以窥见,清帝对于在此起居大殿休憩时向北观赏湖光山色的空间的追求是一脉相承的。
再有,九州清晏殿的立面形式处理反映了园林建筑中大型寝居建筑的特色。圆明园四十景图中所绘九州清晏殿单层卷棚歇山布瓦顶,是离宫园囿中大型寝居建筑普遍采用的屋顶形式。在《圆明园记》中,雍正曾称圆明园的做法“其采椽栝柱素甓版扉,不斫不枅,不施丹雘,则法皇考之节俭也”。[7]这样的处理至后世得到继承,使圆明园的建筑环境中除少数宗教、礼制建筑外,均不涉辉煌,寻求“林泉抱素之怀”。到了道光年间火后重修圆明园殿、奉三无私、九州清晏殿三殿之时,也对此念念不忘:“爰命诸臣庀材鸠工,缮完补阙,惟期示俭于后,不敢增美于前,工未逾年,制已复旧。于以昭不雕不斫之风,亦以守不不忘之志”。[8]可以说,早期九州清晏殿的素瓦素妆、了无雕饰的建筑处理便正在于帝王的双重追求——既标榜“茅茨之俭”,又以素雅的风格形成与自然环境的协调。
总之,早期九州清晏殿的建筑设计具备以下三个基本出发点:1,以帝后寝宫主殿为设计规制的首要标准,布置于中轴线上后殿的重要位置上,并采用七间面阔、歇山屋顶形式;2,兼顾起居生活居住、休息、观景等日常功能要求,设计后抱厦并使之具有良好的景观朝向;3,体现园林环境中的质朴风尚,同时满足皇家审美要求。这三点均在建筑内檐装修格局布置中得到了深化,并基本形成独立形制为后世遵照。
二 九州清晏早期内檐装修形制
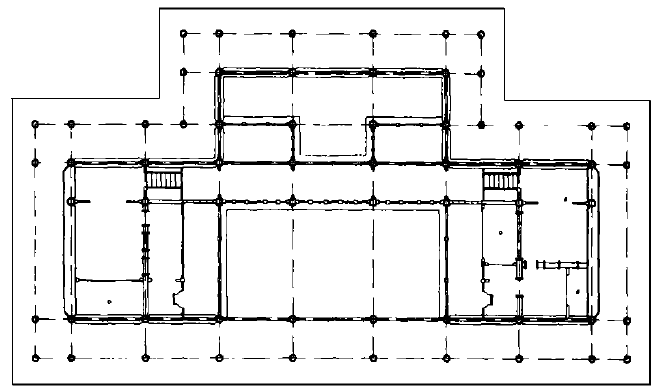
关于道光十年以前的九州清晏殿内檐装修形制,我们可以参照清代档案文存和样房图存进行考查。雍正三年的内务府活计档有这样的记载:“员外郎海望奉上谕:圆明园后殿内仙楼下做双圆玻璃窗一件,做样呈览过再做。”[9]圆明园殿以北的中路殿宇有奉三无私和九州清晏殿二座,奉三无私建筑形式简明,且在圆明园营建之初内檐装修简约,上述档案中的圆明园后殿当为九州清晏殿,九州清晏殿室内布置有仙楼。中国国家图书馆现收藏又一张题为“九州清晏旧样”的墨绘底样,编号为第4包5号(如图)。图中所绘九州清晏殿七间三间后抱厦和周围廊,平面呈凸字形,可知当属道光十六年前旧观。原始图样为二层分别绘制,后经裱糊误合成一层。尽管如此,我们可以看出在图面内檐中心位置明确绘有仙楼,并占据主导地位。
九州清晏殿内檐装修首层平面图
九州清晏殿内檐装修二层平面图
除图样以外,中国国家图书馆收藏的九州清晏早期做法册中的描述也反映了九州清晏殿室内以仙楼为主形成复合空间的做法:“九州清晏殿……内里五抹碧纱橱十曹(槽),单边帘架四座,飞召(罩)二曹,落地召四曹,床召二曹,开关召一曹,栏杆飞罩六曹,抱月格二座,夹塘(堂)板六曹,单墙板二十曹,门口十八座,方窗桶三座,毗卢帽楣子一座,支摘窗栏杆二十二扇,单挂面十七分,单槛墙板十七曹,直楼梯二座。内西二次间并两梢间因拆搭地炕有碍,拆安仙楼下落地召一曹,开关召一曹,单板墙四曹,门口三座,床召一曹,单挂面十分,直楼梯二座。其余装修槛框不动。拆安召腿横板俱刮蜡见新,拆安楠木槛墙板十三曹,添补新料二成俱召旧式一律见新。”[10]
对照上述记载与“九州清晏旧样”,可以基本吻合:殿座七间加三间后抱厦除周围廊步外均围合成室内空间;前檐明三间由跑马廊围合而成统一的二层共享空间,跑马廊下层由多扇碧纱橱组成,上层由栏杆、横披或碧纱橱组成;后檐明三间有一间加后部三间的T字形共享空间,T字的下端设宝座床,朝向北面湖景;东端二间和西端二间均为二层,其中共布置八张床,是帝后的寝宫和休息空间,飞罩、床罩、开关罩、抱月阁、毗卢帽楣子等内檐装修语汇主要在此空间中使用;楼梯间对称设在殿座后部二次间内。
应当特别指出,仙楼形式的共享空间用于楼阁建筑,也用于单层檐的殿宇。作为单层檐的殿宇,九州清晏殿采用适当加大柱高的处理方法,室内利用内檐装修语汇创造二层空间的两个中央部分共享空间,二者间以二层连廊作为空间划分手段。同时,在跑马廊处采用统一的手法进行装饰,求得统一的视觉效果,且采用碧纱橱围合共享空间,保留闭合开启双重可能。至于殿宇室内是否采用紫禁城乐寿堂的结构处理方法,即在共享空间中隐藏梁架结构,减弱建筑开间的痕迹,尚需要深入研究。
在上述分析之外,我们需要进一步考察九州清晏殿内檐装修所采用的材料和装饰手法。除上文提及的雍正年间活计档对仙楼下玻璃窗的简略记述外,尚未见其他记载。然而,工艺和做法的逐步研究将在探讨形制设计之余,为今日对样式房设计风格和细部设计手法的了解提供巨大的帮助。
总之,九州清晏殿内檐装修的设计深化了建筑设计的三个要点:1,采用共享空间加宝座的恢弘室内效果以适应寝宫大殿的地位;2,建筑北部的共享空间和东西小空间的划分和布置充分考虑景观朝向和私密性要求,以满足帝后日常生活的需要;3,室内采用丰富的内檐装修语汇和玻璃、硬木等贵重材料,在质朴外表之内包含精美之实,反映了雍正帝推崇“内廷恭造之势”、反对“虽其巧妙大有外造之气”[11]的好尚。
三 讨论
通过以上工作,我们可以将九州清晏殿内檐装修格局总结为“在单层建筑中的以中心仙楼为主题的复合室内空间模式”。作为圆明园寝宫大殿采用的这种模式,在其他皇家宫殿园林中是否具有普遍性呢?
参照其内檐装修三维效果,我们可以发现,包括故宫宁寿宫一区的乐寿堂、长春园含经堂的淳化轩、西苑丰泽园的春耦斋等清代帝王重要寝居大殿内檐装修中,存在十分相似的空间划分和装饰处理手法。乐寿堂,营建于乾隆三十七年左右,面阔七间,进深三间带前后廊,室内南面明三间由跑马廊围合成二层共享空间,下层曾设有宝座、地平、屏风,东西两翼为供日常起居的小空间,北面也有一个三间的共享空间,南北二空间由横向的二层廊子分割,并于廊子中一间设北向宝座床;淳化轩,建于乾隆三十三年至三十五年间,面阔七间,进深三间带前后廊,有研究表明,其室内空间与乐寿堂大体一致[12];春耦斋,建于乾隆二十二年,面阔七间加五间后抱厦带前后廊,在同治十二年样式房踏勘画样中反映出的室内格局酷似九州清晏殿。
进而,在清代皇家宫殿园林的几个大型非理政型寝居空间内采用这种室内空间格局的背后,体现了什么样的清代皇家宫廷室内设计的深层问题呢?
由于在康熙帝建设的热河、畅春园等处的遗迹和史料为发现类似九州清晏殿的室内格局,按照营建时间的先后顺序,上述内檐类型的殿宇可以排列如下:九州清晏殿、春耦斋、淳化轩、乐寿堂。其建筑体量依次是七间加三间后抱厦、七间加五间后抱厦和两座单层歇山顶的七间大进深殿。在此演化过程中,建筑形式随区域属性的不同发生了变化,而设计中对内檐装修格局的关照占据了重要的位置。那么,一种新的室内空间形制是如何诞生的?皇家营造体系中的什么人在这里起到了决定性的作用?技术人员的设计工作和设计思想又具备哪些特点呢?笔者以为,这些问题的回答需要以系统论为出发点,结合建筑学、历史学、社会学,进行综合研究。本文仅尝试整理建筑实存、图存、文存,愿为今后的圆融弼力锱铢。
[2] 《圆明园后记》,载于《高宗御制文初集》,光绪刊本,卷四。
[3] 张恩荫:《圆明园变迁史探微》,北京体育学院出版社,1993年,第77、186页。
[5] 贾珺:《清代离宫御苑朝寝空间研究》,清华大学建筑学院工学博士学位论文,2001年。
[6] 中国国家图书馆藏样式雷排架364包170号,无名做法册。
[7] 《世宗御制文集》,光绪刊本,卷五。
[8] 《重修圆明园三殿记》,载于《宣宗御制文余集》,光绪刊本,卷五。
[9] 内务府全宗,活计档,雍正三年九月十八日,木作。载于中国第一历史档案馆编,《圆明园》(下),上海古籍出版社,1991年。
[10] 中国国家图书馆藏样式雷排架364包170,无名做法册。
[11] 中国第一历史档案馆藏,内务府全宗,活计档3310号,雍正五年闰三月初三日谕:朕看从前造办处所造的活计好的虽少,还是内廷恭造式样,近来虽其巧妙,大有外造之气。尔等再造时不要失去内廷恭造之势。
[12] 朱杰:《长春园淳化轩与故宫乐寿堂考辩》,《故宫博物院院刊》,1999年第2期。
注:本文转载自《圆明园研究》52期

.jpg)









位访客,京ICP备05020700号